Save
Ask
Tour
Hide
Share
$669,600
1 Day On Site

1505 Crooked Hook Rd.
North Myrtle Beach, SC 29582

For Sale|Single Family Residence|Active
3
Beds
3
Total Baths
3
Full Baths
2,021
SqFt
$331
/SqFt
2025
Built
Subdivision:
Kingswood On The Waterway
County:
Horry
Listing courtesy of The Beverly Group: 8436852496
Call Now: 843-385-7775
Is this the listing for you? We can help make it yours.
843-385-7775
1505 Crooked Hook Rd.
Save
Ask
Tour
Hide
Share

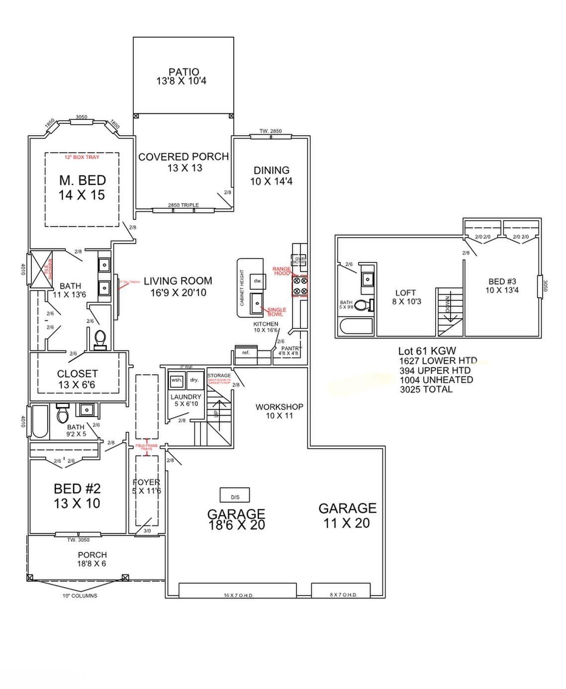
Under Construction! Welcome to the wonderful "Indigo" floor plan featuring 3 spacious bedrooms, 3 luxurious bathrooms, with a HUGE THREE-car garage + a workshop area, perfectly situated on a Large homesite in a prestigious Intracoastal Waterfront community in the heart of North Myrtle Beach & Just a Golf Cart ride to the Beach! Step into a bright and airy open-concept living space, thoughtfully designed with contemporary finishes and high-end fixtures throughout. The gourmet kitchen boasts state-of-the-art appliances, quartz countertops, a large center Island, natural gas range and ample cabinetry perfect for culinary adventures and entertaining guests. Relax in your luxurious main floor master suite, featuring a spacious bedroom, walk-in closet, and en-suite bathroom, with dual sinks and a gorgeous zero entry tiled shower. Located just moments away from renowned golf courses, shopping, and a variety of local dining options, every day brings a new adventure. Enjoy easy access to exciting attractions and entertainment, ensuring there's always something to explore. Public Beach Access, Central Park boasting basketball, tennis, pickleball courts, and more, as well as the NMB Aquatic and Fitness Center are all conveniently located less than 5 minutes away. Kingswood on the Waterway offers the perfect blend of relaxation and convenience. Don't miss out on this incredible opportunity to live in one of North Myrtle Beach's most desirable locations! Building Lifestyles for over 40 years, we remain the Premier Homebuilder in the Grand Strand, crafting new communities and custom homes. Honored as four-time Best Home Builder by WMBF News and voted Best Residential Real Estate Developer in consecutive years by the Myrtle Beach Herald Readers’ Choice Awards. Proudly rooted in the Grand Strand, we invite you to experience the local pride that we build in Horry and Georgetown Counties.

Save
Ask
Tour
Hide
Share
Listing Snapshot
Price 
$669,600
Days On Site 
1 Day
Bedrooms 
3
Inside Area (SqFt) 
2,021 sqft
Total Baths 
3
Full Baths 
3
Partial Baths 
N/A
Lot Size 
0.28 Acres
Year Built 
2025
MLS® Number 
2528062
Status 
Active
Property Tax 
N/A
HOA/Condo/Coop Fees 
$85 monthly
Sq Ft Source 
Builder
Friends & Family
Recent Activity
yesterdayListing updated with changes from the MLS®
yesterdayListing first seen on site
General Features
Acres 
0.28
Attached Garage 
Yes
Disclosures 
CovenantsRestrictionsDisclosure
Foundation 
Slab
Garage 
Yes
Garage Spaces 
3
Green Energy Efficient 
DoorsWindows
Home Warranty 
Yes
Levels 
One and One HalfOne
Number Of Stories 
1
Parking 
AttachedGarageGarage Door Opener
Parking Spaces 
6
Property Condition 
Under Construction
Property Sub Type 
Single Family Residence
Security 
Smoke Detector(s)
SqFt Total 
3025
Style 
Ranch
Utilities 
Cable AvailableElectricity AvailableNatural Gas AvailablePhone AvailableSewer AvailableUnderground UtilitiesWater Available
Water Source 
Public
Zoning 
R1A
Interior Features
Appliances 
DishwasherDisposalMicrowaveRange
Cooling 
Central Air
Flooring 
Carpet
Furnished 
Unfurnished
Heating 
Natural GasForced Air
Interior 
Entrance FoyerKitchen Island
Laundry Features 
Washer Hookup
Save
Ask
Tour
Hide
Share
Exterior Features
Construction Details 
HardiPlank Type
Lot Features 
Rectangular Lot
Patio And Porch 
PorchPatioRear PorchFront Porch
Pool Features 
CommunityOutdoor Pool
Community Features
Association Dues 
85
Community Features 
Pool
HOA Fee Frequency 
Monthly
MLS Area 
11F North Myrtle Beach Area--between Hwy 17 and waterway
Schools
School District
Unknown
Elementary School
Ocean Drive Elementary
Middle School
North Myrtle Beach Middle School
High School
North Myrtle Beach High School
Listing courtesy of The Beverly Group: 8436852496



Listing information is provided by Participants of the Coastal Carolina Association of Realtors. IDX information is provided exclusively for personal, non-commercial use, and may not be used for any purpose other than to identify prospective properties consumers may be interested in purchasing. Information is deemed reliable but not guaranteed. Copyright 2025, Coastal Carolinas Multiple Listing Service, Inc
Last checked: 2025-11-23 07:07 PM UTC

Neighborhood & Commute
Source: Walkscore
Save
Ask
Tour
Hide
Share