516 14th Ave. NSurfside Beach, SC 29575




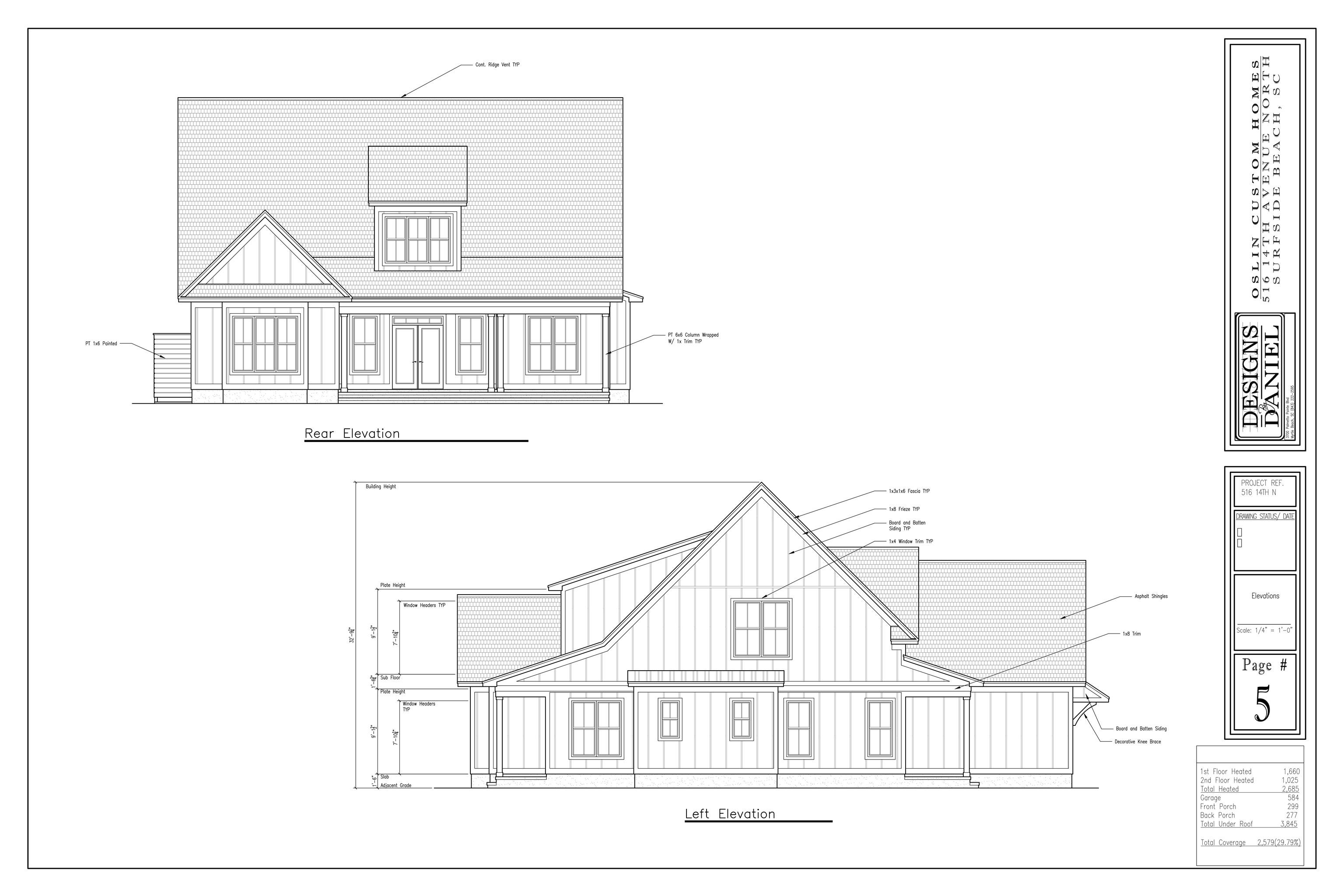
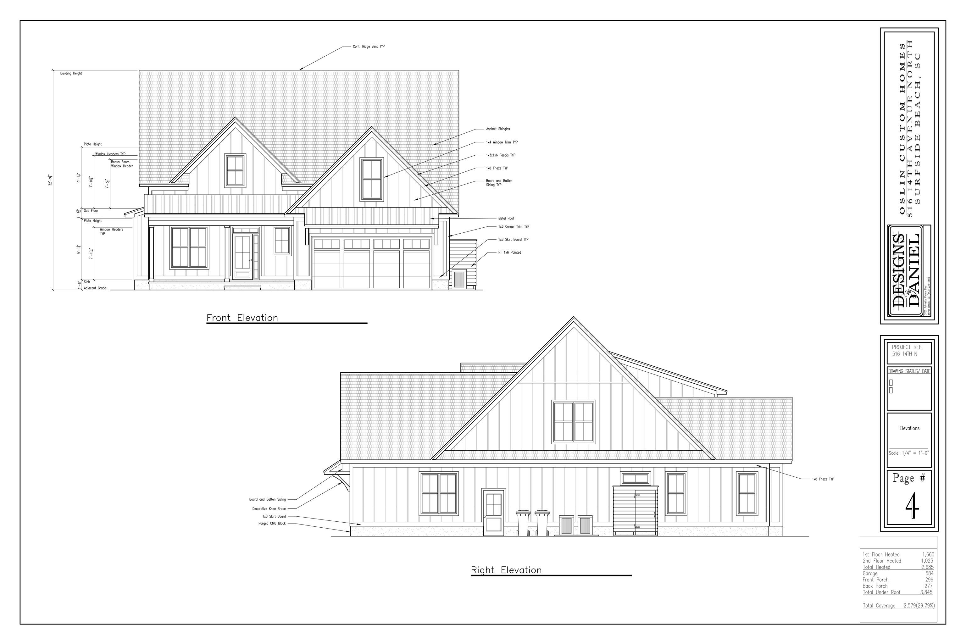
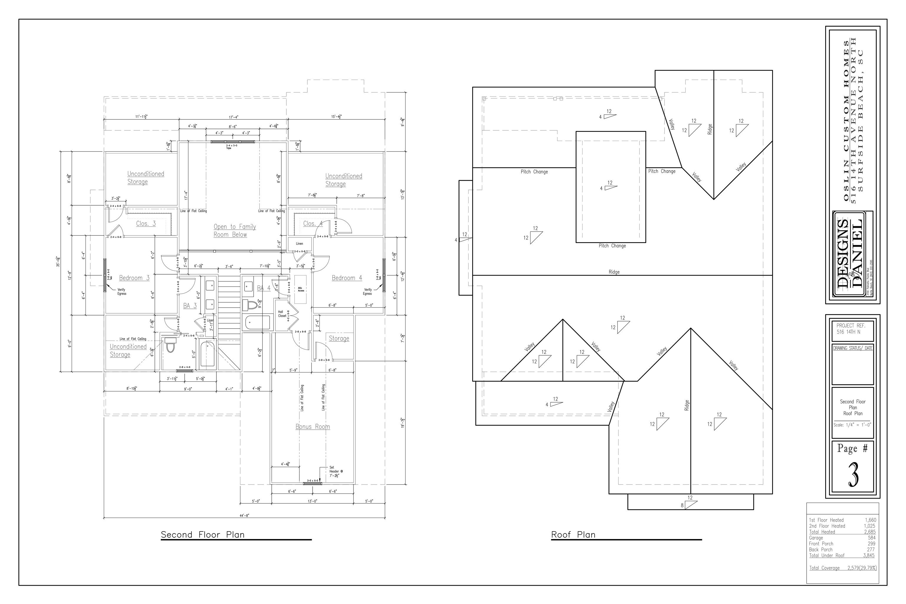
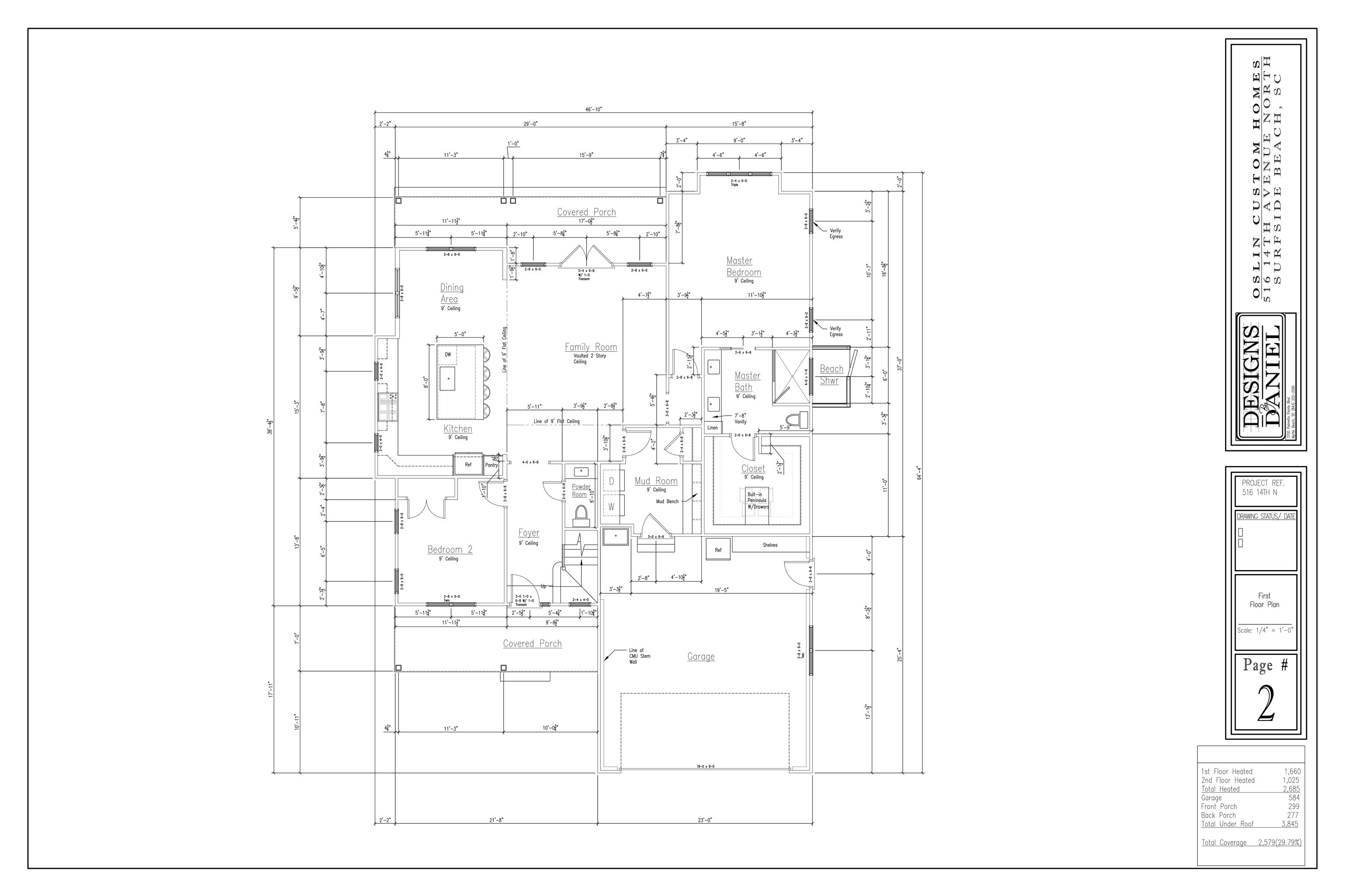
Huge North Surfside Private Lot with brand New Construction from one of the areas premier high end custom home builders with prestained hardie siding, Hurricane rated GAF shingles with Standing Seam metal accents, white ColorPlus Hardie siding with black YKK pressure rated windows. Spacious interior with 10' cielings, 8' solid core doors, custom hand built cabinets throughout with all granite/quartz tops including in the bathroom. Trane HVAC Equipment, spray foam roof deck, Sherwin Williams Emerald Paint, professional series appliances in custom kitchen. Listing Agent can coordinate tour of previous builds to demonstrate like kind product from previous construction in Surfside.
| 2 days ago | Listing updated with changes from the MLS® | |
| 2 months ago | Listing first seen on site |
Listing information is provided by Participants of the Coastal Carolina Association of Realtors. IDX information is provided exclusively for personal, non-commercial use, and may not be used for any purpose other than to identify prospective properties consumers may be interested in purchasing. Information is deemed reliable but not guaranteed. Copyright 2025, Coastal Carolinas Multiple Listing Service, Inc
Last checked: 2025-11-23 10:25 PM UTC


Did you know? You can invite friends and family to your search. They can join your search, rate and discuss listings with you.