1100 Pochard Dr.Conway, SC 29526




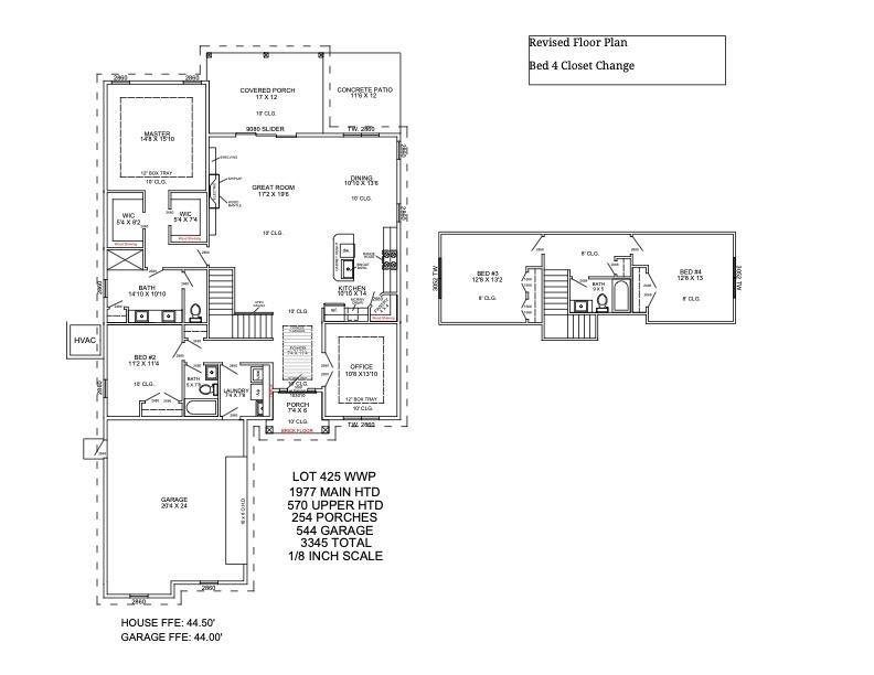
Custom home is under construction at the beautiful Wild Wing Plantation community! Traditional floor plan with Master Bedroom, which has 2 walk-in closets and 1 additional bedroom on the first floor, 2 additional bedrooms and a full bathroom is upstairs. This home has an open floor plan with waterproof vinyl planking on entire first level, quartz countertops with shaker style white staggered cabinets in the kitchen and all bathrooms, stainless steel appliances with a gas stove. The master bathroom has a tiled shower with door and linen closet. The Living Room will have an electric fireplace surrounded by bookshelves, Crown Molding in main areas, wainscoting in Foyer and Dining, wood shelving in Master Closet and pantry and so much more. Exterior of the home is Hardie Plank with brick perimeter and a large covered rear porch with nicely landscaped flower beds, sodded yard and irrigation. Wild Wing Plantation offers Golf Courses, Clubhouse, 3 Pools, Splash Zone/Water Slide, Kid’s Playground, Picnic Area, Fitness Room, Lighted Tennis Courts, Basketball Court, Private Community Day Docks with Boat Ramp and Parking, and On-site Boat and RV Storage. Building lifestyles for over 40 years, we remain the premier home builder along the Grand Strand. We’re proud to be the 2021, 2022, 2023, 2024 and 2025 winners of both WMBF News' and The Sun News Best Home Builder award, 2023, 2024 and 2025 winners of the Myrtle Beach Herald's Best Residential Real Estate Developer award, 2025 and 2024 winners of The Horry Independent’s Best Residential Real Estate Developer and Best New Home Builder award. Welcome Home at Wild Wing Plantation!
| 2 days ago | Listing updated with changes from the MLS® | |
| 4 months ago | Price changed to $749,990 | |
| 6 months ago | Listing first seen on site |
Listing information is provided by Participants of the Coastal Carolina Association of Realtors. IDX information is provided exclusively for personal, non-commercial use, and may not be used for any purpose other than to identify prospective properties consumers may be interested in purchasing. Information is deemed reliable but not guaranteed. Copyright 2025, Coastal Carolinas Multiple Listing Service, Inc
Last checked: 2025-11-23 07:55 PM UTC


Did you know? You can invite friends and family to your search. They can join your search, rate and discuss listings with you.