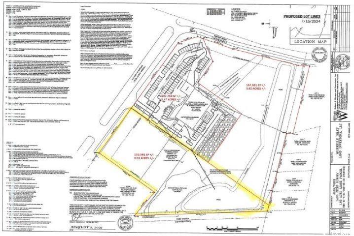
3545 Highway 17 BypassMurrells Inlet, SC 29576




Overview- This exceptional 3.03-acre vacant parcel is primed for commercial development in the thriving coastal community of Murrells Inlet, SC. Located along the highly visible US Highway 17 Bypass, the property boasts excellent accessibility and visibility, making it an ideal location for a variety of businesses. Key Features- Zoned GC (Commercial District) with Waccamaw Neck Commercial Corridor Overlay Zone Approved Master Site Plan for a mix of medical, retail, and senior living facilities Up to 12,000 SF of medical office/imaging space Up to 34,000 SF of medical office space Up to 12,000 SF of retail/medical retail space Up to 12,000 SF of skilled nursing facility (SNF) space Development Considerations- Principal Building Height: 35 feet max. (2 stories) Building Setbacks: Front yard on US Hwy 17 Bypass – 90 feet Front yard – 50 feet min. Side yard – 10 feet min. Rear yard – 15 feet min. Corner – 33 feet min. Parking requirements will determine the potential development density for the site Detention: Percentage of building footprint coverage will determine detention requirements Location- The property is located in the heart of Murrells Inlet, a popular tourist destination with a growing year-round population. The area is home to a variety of businesses, including restaurants, shops, and hotels. The property is also close to several medical facilities, including Waccamaw Medical Center and Murrells Inlet Medical Center. Development Potential- This property offers a rare opportunity to develop a high-quality commercial project in a prime location. The approved Master Site Plan provides a flexible framework for a variety of uses, and the property's zoning allows for a mix of medical, retail, and senior living facilities. With its excellent accessibility, visibility, and proximity to a growing population, this property is poised for success. Contact Us- To learn more about this exciting development opportunity, please contact us today. Property Highlights- Prime commercial location in Murrells Inlet, SC Approved Master Site Plan High visibility and accessibility Flexible zoning allows for a variety of uses Strong demand for medical, retail, and senior living facilities Ideal for- Medical office/imaging building Medical office building Retail/medical retail building Skilled nursing facility (SNF)
| 2 days ago | Listing updated with changes from the MLS® | |
| 3 weeks ago | Status changed to Active | |
| a year ago | Listing first seen on site |
Listing information is provided by Participants of the Coastal Carolina Association of Realtors. IDX information is provided exclusively for personal, non-commercial use, and may not be used for any purpose other than to identify prospective properties consumers may be interested in purchasing. Information is deemed reliable but not guaranteed. Copyright 2025, Coastal Carolinas Multiple Listing Service, Inc
Last checked: 2025-11-23 07:44 PM UTC


Did you know? You can invite friends and family to your search. They can join your search, rate and discuss listings with you.